Summary
  • 3 Bedrooms
  • 2 Bathrooms
  • 2 Receptions
Gallery
Description

Delightful and quite stunning, three bedroom true bungalow in a very popular residential area within easy reach of village amenities, primary transport routes and excellent schools. Available with no upward chain.

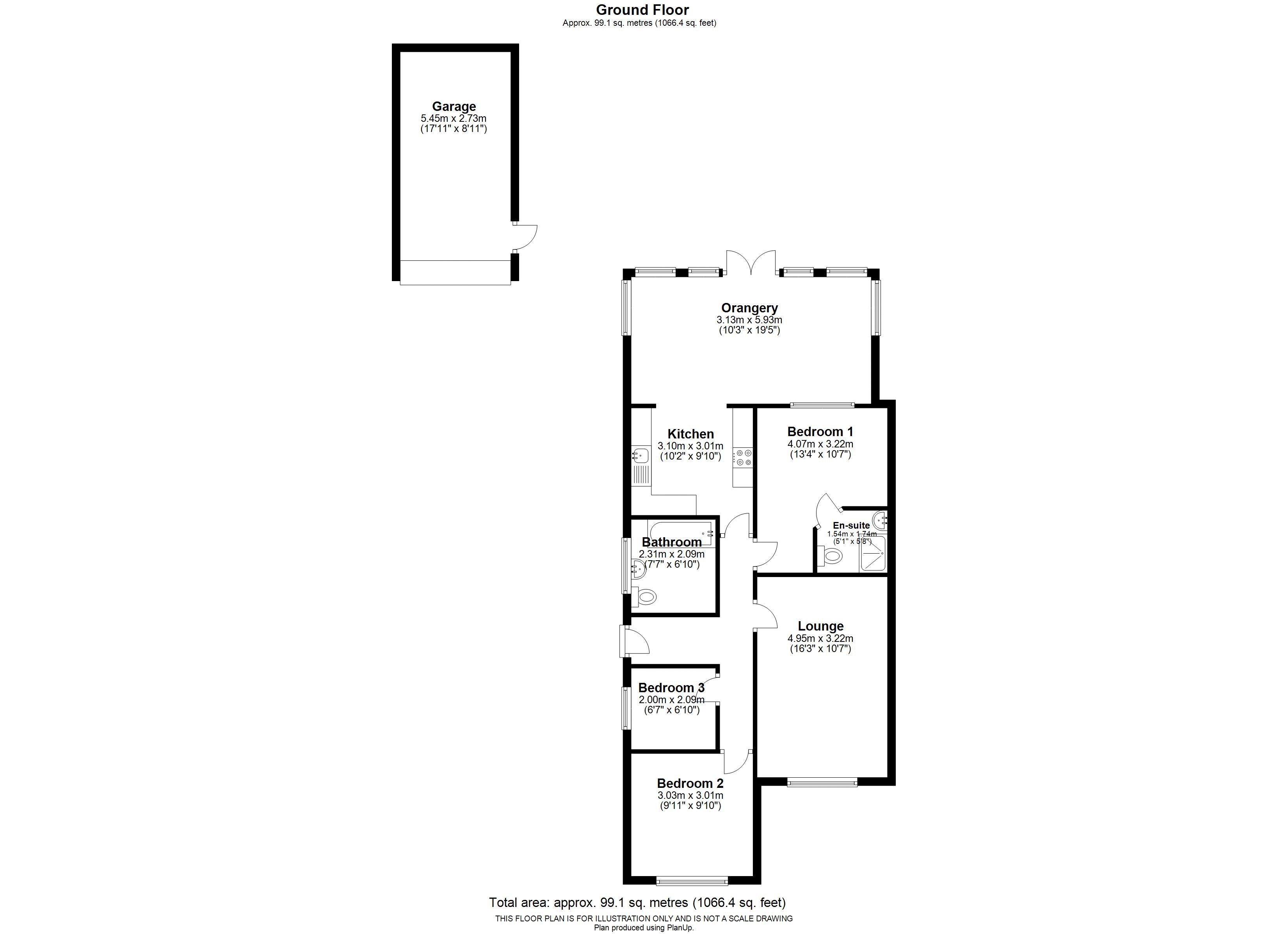
To the front the driveway can accommodate several vehicles and a caravan or motorhome and leads to the main entrance.  Step into the welcoming hallway and head to the spacious lounge with remote controlled living flame gas fire.  The stylish kitchen comprises a range of wall and base units with quartz worksurfaces, etched drainer and integrated appliances including refrigerator, freezer, washing machine, gas hob and double electric oven and grill.

A large archway leads through to the orangery, which is a fabulous space, awash with natural light and with plenty of room for dining and casual furniture.

Bedroom one has built in storage and en suite comprising wash hand basin on vanity, wc and electric shower in cubicle.  Bedroom two is a second double to the front with bedroom three making an excellent home office.

The loft houses the Worcester combi boiler and is, quite frankly, huge offering potential for additional accommodation if that was required.

Outside, the south facing garden has an Indian stone terrace and lawn bordered by mature shrubs making it the perfect place to relax and entertain.  The detached garage is alarmed with power and light for additional secure storage.

This is a first class home suitable for both families and those requiring their living on one level.  Do give us a call to arrange a viewing and make it yours.  Council tax B, EPC D, Freehold.

 

Download Brochure
Floor Plan
#
Energy Performance Certificates

The Energy Performance Certificate (EPC) gives the building a standard energy and carbon emission efficiency grade from 'A' to 'G', where 'A' is the most efficient and 'D' being the average to date.

View EPC Report