Summary
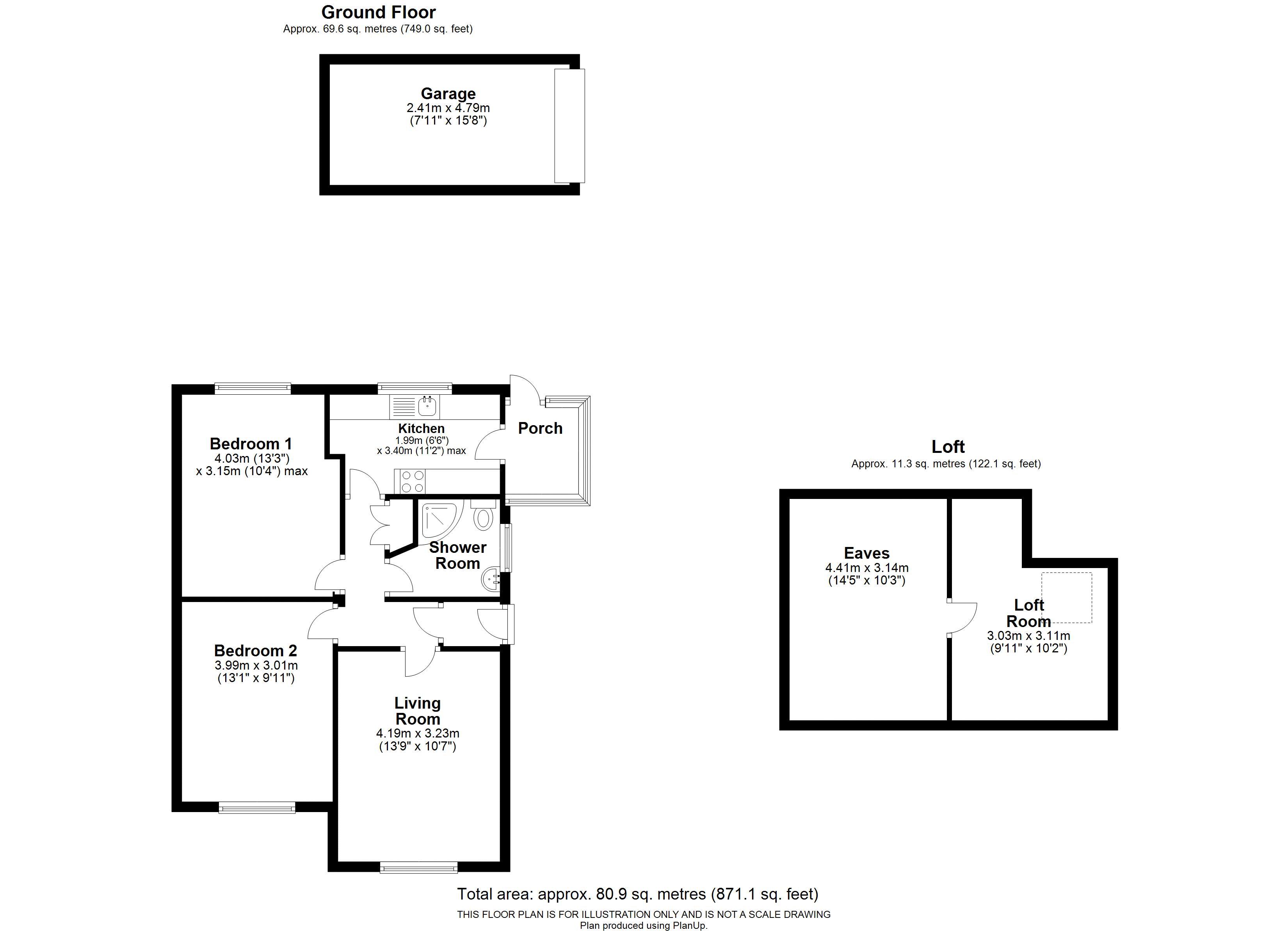
2 Bedrooms
1 Bathrooms
1 Receptions
- True bungalow
- Two bedrooms
- Corner plot
- Garage and parking
- Media tour
- No upward chain
Gallery
Description
Delightful two bedroom true bungalow on a corner plot, with detached garage in a quiet cul de sac location, with new flooring throughout and available with no upward chain.
A pathway leads through low maintenance gardens to the front and side with crushed slate and gravel bordered by mature hedging to the main entrance. Step into the hallway and then to the lounge with gas fire. The kitchen comprises eye level grill and oven, ceramic hob and space, power and plumbing for other appliances.
The two bedrooms can each house a double and the bathroom comprises mixer shower in cubicle, wc and wash hand basin. The boarded loft is accessed by fold down wooden ladder and has been used as a playroom and offers additional storage as well as housing the combi boiler.
A porch leads to the south west facing rear garden which is also low maintenance with patio and lazy lawn and is the perfect place to relax.
With easy access to primary transport routes and the village centre this lovely light home has plenty to offer. Do give us a call to arrange a viewing and make it yours. Council tax B, EPC C, Freehold.
Download BrochureMap
Floor Plan
Energy Performance Certificates
The Energy Performance Certificate (EPC) gives the building a standard energy and carbon emission efficiency grade from 'A' to 'G', where 'A' is the most efficient and 'D' being the average to date.
View EPC Report

