Summary
3 Bedrooms
1 Bathrooms
3 Receptions
- Perfect development opportunity
- Three bedrooms
- Corner plot
- Large detached garage
- Media tour
- No upward chain
Gallery
Description
This lovely and spacious property occupies a substantial corner plot in a popular residential area. Having been within the same family for over 40 years, it now presents a perfect opportunity for the new owners to make it their own. Available with no upward chain.
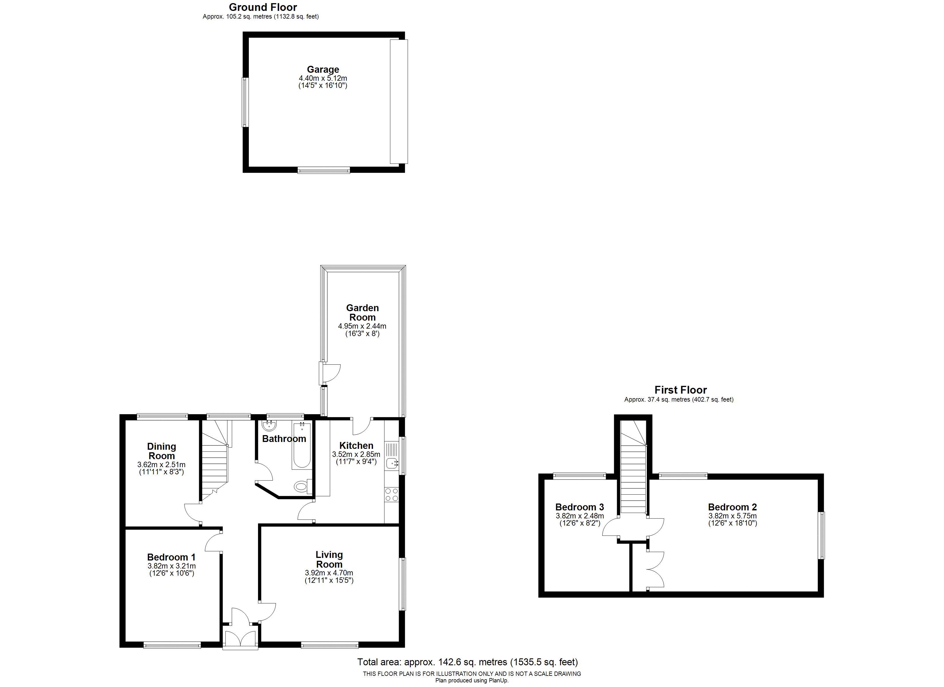
Step into the vestibule and from there to the welcoming hallway. To the right, the living room is bathed in natural light from windows to two elevations. To the left is the first of three double bedrooms. To the rear, the second reception room overlooks the garden, and the kitchen leads to the garden room which overlooks both the rear and side gardens. Completing the ground floor is the family bathroom.
Step outside into the flagged and low maintenance rear garden which is a lovely private space in which to relax and entertain. A potting shed gives access to the large detached garage and secure driveway with ample space to accommodate a caravan, motorhome or several vehicles. To the side is a delightful garden with lawn bordered by mature shrubs including magnolia and azalea.
Back inside, stairs lead to the first floor landing with two bedrooms, one of which is especially large.
Close to primary transport routes, town centre amenities and the Leyland Loop this property occupies over 1500 square feet so there is plenty of scope to bring your own personality to it. Do give us a call to arrange a viewing and make it yours. Council tax C, Freehold.
Map
Floor Plan
Energy Performance Certificates
The Energy Performance Certificate (EPC) gives the building a standard energy and carbon emission efficiency grade from 'A' to 'G', where 'A' is the most efficient and 'D' being the average to date.
View EPC Report

