Summary
3 Bedrooms
2 Bathrooms
2 Receptions
- Substantial semi detached property
- Corner plot
- Cul de sac location
- Three bedrooms
- Two reception rooms
- Media tour
Gallery
Description
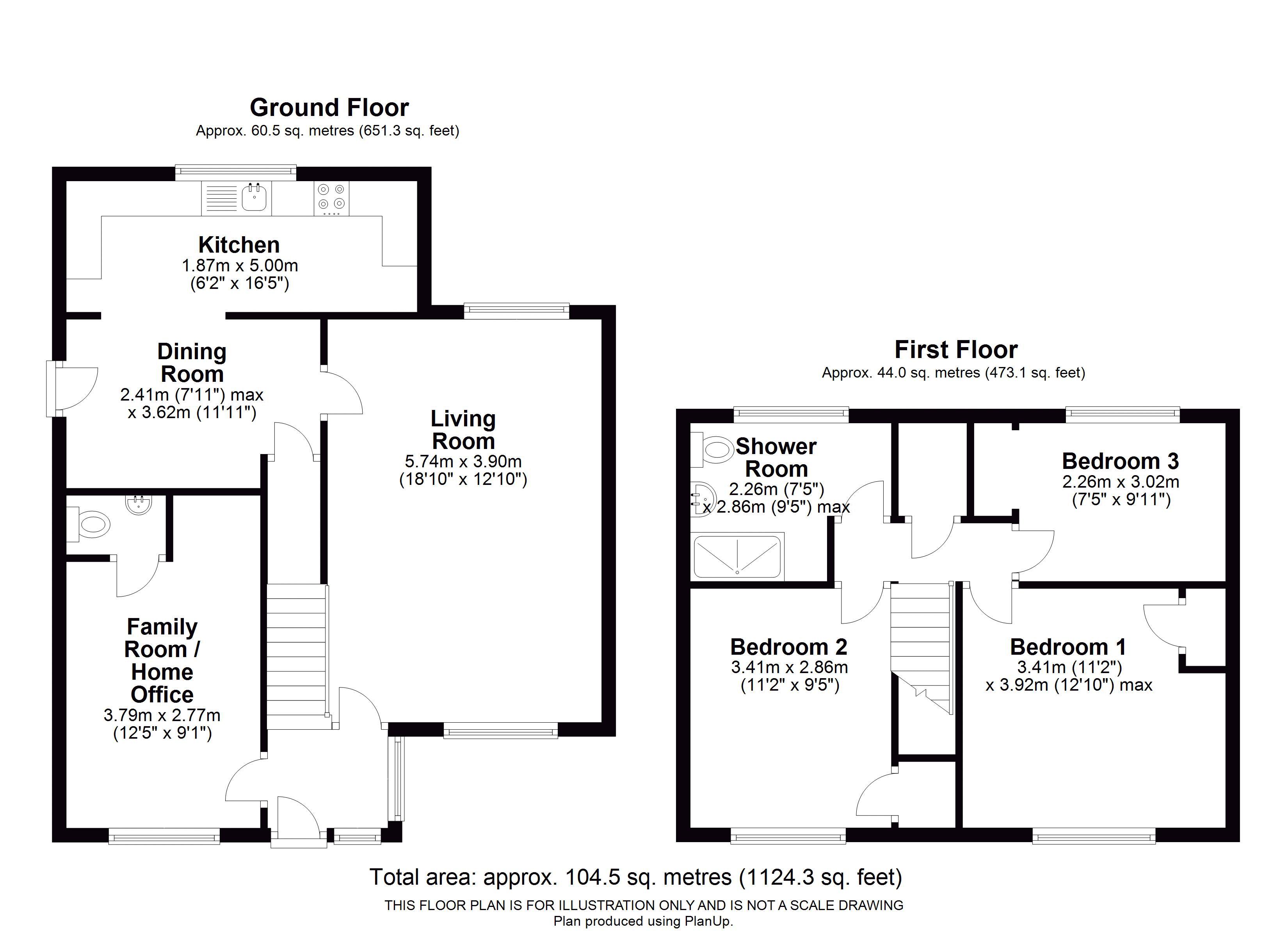
Substantial semi detached property on a corner plot in a quiet cul de sac within easy reach of village amenities and primary transport routes and in the catchment area for excellent schools.
To the front the driveway is bordered by mature planting and can accommodate a number of vehicles including a motorhome or caravan. Step into the vestibule and to the left, reception two is a very versatile room which benefits from having a cloakroom comprising wc and wash hand basin off, and would make an excellent fourth bedroom, games room or home office.
To the right, the main reception room runs the full depth of the property and has plenty of natural light from windows to two elevations. Leading off is the dining kitchen with a range of wall and base units, electric oven and grill, five burner gas hob with extractor over and space, power and plumbing for other appliances.
A stable door opens to the garden which is primarily west facing and laid to lawn with mature planting with plenty of space for a summerhouse and greenhouse.
Back inside stairs lead to the first floor landing with large airing cupboard housing the combi boiler and three bedrooms each of which can accommodate a double bed. The family bathroom comprises walk in shower cubicle with electric shower over, wash hand basin and wc.
With over 1100 square feet of accommodation this property makes an excellent family home. Do give us a call to arrange a viewing and make it yours. EPC C, Council tax C, Freehold.
Map
Floor Plan
Energy Performance Certificates
The Energy Performance Certificate (EPC) gives the building a standard energy and carbon emission efficiency grade from 'A' to 'G', where 'A' is the most efficient and 'D' being the average to date.
View EPC Report

